CALIFORNIA DREAMIN’

Purpose:
Design a retreat/ cottage where you can get away, be creative and perform a certain activity. Keeping in account how the indoor spaces relate to the exterior spaces not only with views but how the outdoor spaces might be used to expand the function of the interior.

Must Haves:

  • Sanitary 40-80 SF - Water closet | Shower or tub | Lavatory | Linen Closet

  • Food Preparation 40 - 80 SF - Sink & Countertops | Refrigerator | Range/oven | Microwave

  • Living Area: approx. 250 - 350 SF - Queen size bed | closet for hanging clothes | Seating and other furnishings to accomodate 2-4 people

  • Single Level: 416 SF - 16'x26' interior footprint | maximum height of building 20' | loft permitted

Client:
A couple in their 60's who live in Santa Monica. The husband is an art dealer and wife is an actress. They have a modern style while still being laid back. They both love the sun and can't get enough of the beach so want to make sure the space not only is functional inside but from every angle welcomes the outside. On their property they are building a retreat/cottage for not only themselves to use for guests, parties, small gatherings but intend to have their granddaughter stay there while she creates her own couture line. 

 

Location Mood Board


 

Floor Plans

hand drawn

1st Floor Plan

2nd Floor Plan


 

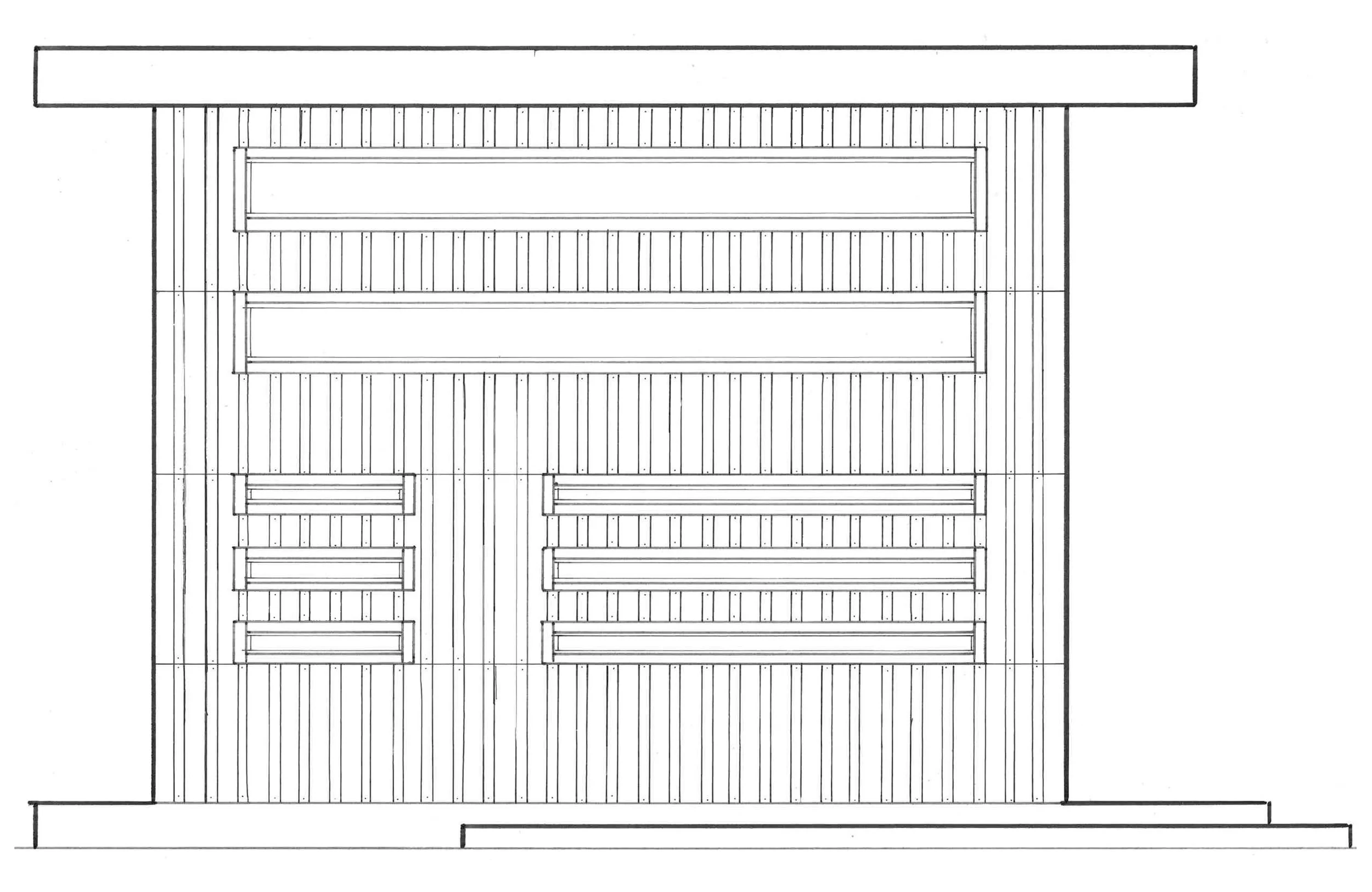
Exterior Elevations

hand drawn

North View

East View

South View

West View


 

Interior Mood Board


 

Interior Elevations

Hand Drawn

North Elevation

East Elevation

South Elevation

West Elevation


 

3D Version

 

A deeper look into this stylish yet functional design for a creative fashion designer.

Clean lines, modern finishes, pops of color and assortment of textures.